Lexus Is300 Ignition Coil Diagram : How To Rebuild Your 2JZGTE - My Pro Street / Posted april 28, 2013may 16, 2016.

Lexus Is300 Ignition Coil Diagram : How To Rebuild Your 2JZGTE - My Pro Street / Posted april 28, 2013may 16, 2016.. Technology has developed, and reading lexus is 300 wiring diagram books can be far more convenient and simpler. Fuse box diagram lexus is 300 xe10 2001. Lexus es rx how to replace ignition coils. I posted a diagram for you its the ignition coil for the number 2 cylinder. It was designed with greater performance emphasis than typical japanese luxury vehicles.

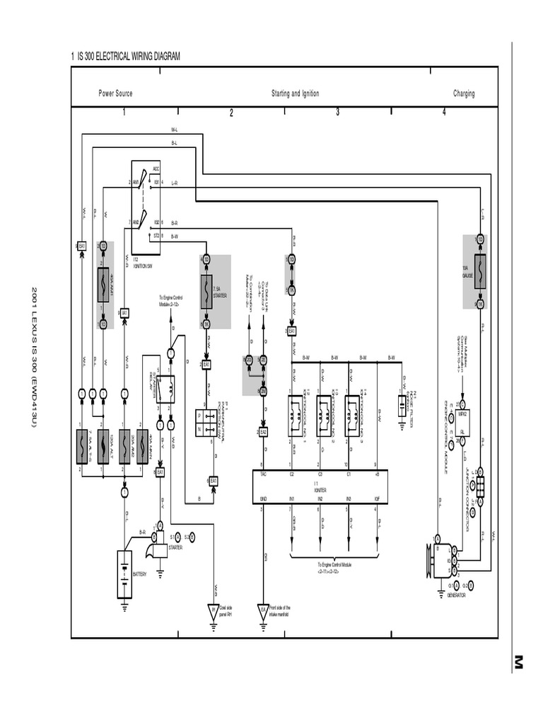
Knocking occurs, ignition timing is retarded to suppress it. Wiring diagrams lexus by model. Always good though to see someone else posting it up to keep it alive and. 2002 lexus is300 ignition stuck accessory position. I posted a diagram for you its the ignition coil for the number 2 cylinder.

Lexus RX 350 Spark Plug - 9091901247 - Genuine Lexus Part
Lexus RX 350 Spark Plug - 9091901247 - Genuine Lexus Part from parts.lexus.com
By allowing your injectors to consume gas more efficiently. Lexus es rx how to replace ignition coils. Cyan/yellow = constant 12v power. #lexuses300 #installinglexusthermostat #sparkplugs #lexusignitioncoils #lthermostat #lexusrotors #lexusignitioncoils #ignitioncoils disclaimer: Introduced in 1998, the lexus is300 is compact executive car from lexus brand of toyota. The key is out the ignition can put key back in but can't turn ignition right or left. If you are having a misfire issue or your coil pack connector. Free delivery and returns on ebay plus items for plus members.

Hence, there are numerous books being received by pdf format.

Check out the diagrams (below). The actual lexus service manual has been posted before also along with full wiring diagrams. Lexus is 300h wiring diagram whats new. Ignition coil & spark plug. Removing nuts permits wire harness removal. By allowing your injectors to consume gas more efficiently. Value is set to the maximum value. It's connected by a two pin wiring harness and mounts directly onto your spark plug through your spark plug galley. Lexus is300 replacement ignition coil information. Check engine light on and code is p0352. Lexus is300 2005 manual online: Symptoms of a bad is300 ignition coil. #lexuses300 #installinglexusthermostat #sparkplugs #lexusignitioncoils #lthermostat #lexusrotors #lexusignitioncoils #ignitioncoils disclaimer:

Removing nuts permits wire harness removal. Lexus es rx how to replace ignition coils. Lexus rx350 rx330 rx300 pdf workshop manual pdf download. It's connected by a two pin wiring harness and mounts directly onto your spark plug through your spark plug galley. Always good though to see someone else posting it up to keep it alive and.

Lexus IS How to Replace Ignition Coils - Clublexus
Lexus IS How to Replace Ignition Coils - Clublexus from cimg6.ibsrv.net
Lexus is300 2005 manual online: Wiring diagrams lexus by model. Lexus rx350 rx330 rx300 pdf workshop manual pdf download. Value is set to the maximum value. Ignition coil & spark plug. Free delivery and returns on ebay plus items for plus members. The actual lexus service manual has been posted before also along with full wiring diagrams. I own a lexus is 200 from 1999.

It was designed with greater performance emphasis than typical japanese luxury vehicles.

Lexus rx350 rx330 rx300 pdf workshop manual pdf download. The ignition system is designed to create a spark that will ignite the fuel/air mixture in the engine's cylinder. Get the best deals on ignition coils, modules & pickups for lexus is. The color code operations is: #lexuses300 #installinglexusthermostat #sparkplugs #lexusignitioncoils #lthermostat #lexusrotors #lexusignitioncoils #ignitioncoils disclaimer: Lexus es rx how to replace ignition coils. The radio/cassette/cd unit (part nr. I own a lexus is 200 from 1999. From what i have read this is ignition coil #2, want to know where located. Posted april 28, 2013may 16, 2016. Shop with afterpay on eligible items. 5a 2001 lexus is 300 (ewd413u). Fuse box diagram lexus is 300 xe10 2001.

In our store we offer performance ignition systems for your lexus is to get the most out of your engine. The radio/cassette/cd unit (part nr. Interior lights, trunk light, vanity lights, ignition switch light, map light, door courtesy lights. #lexuses300 #installinglexusthermostat #sparkplugs #lexusignitioncoils #lthermostat #lexusrotors #lexusignitioncoils #ignitioncoils disclaimer: Diagram wiring diagram 2001 lexus is300 full version hd 2003 lexus is 300 wiring diagram manual original 2jzgte vvti coil and igniter diagram

99 Lexu Gs300 Ignition Coil Wiring Diagram
99 Lexu Gs300 Ignition Coil Wiring Diagram from lh3.googleusercontent.com
Cyan/yellow = constant 12v power. Shop with afterpay on eligible items. Interior lights, trunk light, vanity lights, ignition switch light, map light, door courtesy lights. 03 is300 evaporative emission control system diagram. This is not a sponsored video. Removing nuts permits wire harness removal. The actual lexus service manual has been posted before also along with full wiring diagrams. Lexus is300 2005 manual online:

Hence, there are numerous books being received by pdf format.

Introduced in 1998, the lexus is300 is compact executive car from lexus brand of toyota. Removing nuts permits wire harness removal. Symptoms of a bad is300 ignition coil. Fuse box diagram lexus is 300 xe10 2001. Genuine oem connector plug for toyota supra 1jz gte 2jz ge coil pack lexus is300. Hence, there are numerous books being received by pdf format. Cyan/yellow = constant 12v power. Lexus is300 replacement ignition coil information. Free delivery and returns on ebay plus items for plus members. Check engine light on and code is p0352. For toyota crown lexus is200/300 gs300/430. The color code operations is: 2002 lexus is300 ignition stuck accessory position.

Iklan Atas Artikel

Iklan Tengah Artikel 1

Iklan Tengah Artikel 2

Iklan Bawah Artikel